
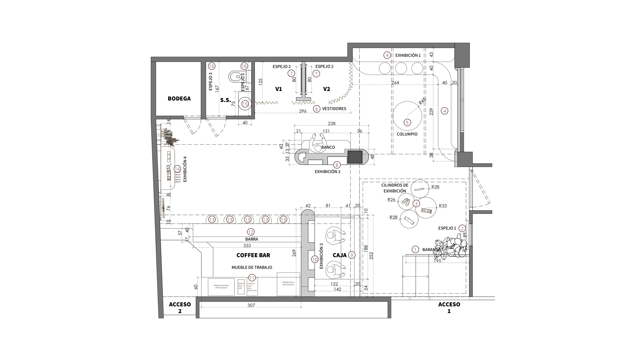
Una concept store que combina colores vivos y patrones únicos en un sólo espacio. Vaiza es una marca Madein El Salvador para literalmente “wearart”, el resultado de fusionar arte y diseño.
El diseño del espacio es muy teatral con gran impacto visual, logrando un equilibrio entre sensaciones etéreas y destacar los productos que son muy protagonistas.
Los clientes querían compartir la magia de su marca y por eso creamos ambientes donde se puedan vivir distintas experiencias.
